Escola de Educação Básica Rainha do Brasil (Porto Alegre/RS)-2015

Tipo: Avaliação do Imóvel
Local: Porto Alegre/RS
Ano: 2015

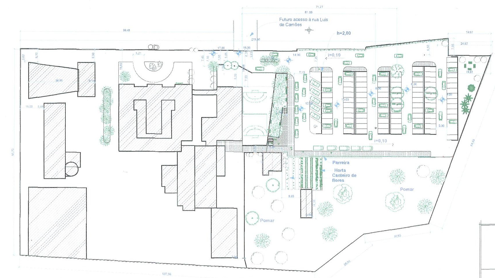
Avaliação de imóvel institucional com a finalidade de determinar o justo valor e vida útil remanescente. Foram avaliados e vistoriados cerca de 16.000 m² de área construída e aproximadamente 2 ha de terreno.

SAM_2538SAM_2553SAM_2488implantaçao - Copy

Sem permissão para comentários.